Affitto
Porta Romana Grande Bilocale Arredato
MILANO (MI)
- ZONA Porta Romana - Medaglie d'Oro
€ 1.300
**Appartamento in Affitto a Porta Romana in via Lattuada - Milano**
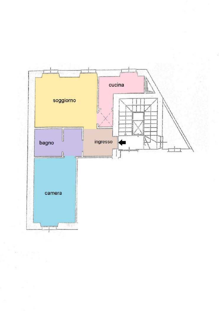
Scopri il tuo nuovo rifugio nel cuore di Milano, in una delle zone più glamour della città! Questo spazioso bilocale, situato in Via Lattuada, è disponibile per l'affitto dal 1° gennaio 2026. Completamente ristrutturato e arredato con gusto, offre un ambiente moderno e accogliente. Con un ampio soggiorno illuminato da due finestre e un cucinotto funzionale, ogni angolo è pensato per il massimo comfort.
La posizione è ideale, con mezzi di trasporto, palestre, negozi, bar e ristoranti a pochi passi. Il riscaldamento autonomo e l'aria condizionata garantiscono un clima perfetto in ogni stagione. Al secondo piano di un elegante stabile con ascensore, l'appartamento vanta soffitti alti e infissi con doppi vetri che assicurano tranquillità e isolamento acustico.
Con una superficie commerciale di 70 m² la casa dispone di armadi a muro, un bagno completo con vasca e una camera da letto confortevole. Il canone mensile è di 1.300, 00 euro, con spese condominiali di 120,00 euro. Non perdere l'opportunità di vivere in uno spazio unico e raffinato! Contattaci per maggiori informazioni e per organizzare una visita. Si affitta a privati e società. Matteo Motta MOTTA IMMOBILIARE viale Monte Nero 16 Milano, tel 02-55.11. 305 / /.
Scopri il tuo nuovo rifugio nel cuore di Milano, in una delle zone più glamour della città! Questo spazioso bilocale, situato in Via Lattuada, è disponibile per l'affitto dal 1° gennaio 2026. Completamente ristrutturato e arredato con gusto, offre un ambiente moderno e accogliente. Con un ampio soggiorno illuminato da due finestre e un cucinotto funzionale, ogni angolo è pensato per il massimo comfort.
La posizione è ideale, con mezzi di trasporto, palestre, negozi, bar e ristoranti a pochi passi. Il riscaldamento autonomo e l'aria condizionata garantiscono un clima perfetto in ogni stagione. Al secondo piano di un elegante stabile con ascensore, l'appartamento vanta soffitti alti e infissi con doppi vetri che assicurano tranquillità e isolamento acustico.
Con una superficie commerciale di 70 m² la casa dispone di armadi a muro, un bagno completo con vasca e una camera da letto confortevole. Il canone mensile è di 1.300, 00 euro, con spese condominiali di 120,00 euro. Non perdere l'opportunità di vivere in uno spazio unico e raffinato! Contattaci per maggiori informazioni e per organizzare una visita. Si affitta a privati e società. Matteo Motta MOTTA IMMOBILIARE viale Monte Nero 16 Milano, tel 02-55.11. 305 / /.
Contratto Affitto
Rif AFFITTOBILOPORTAROMANA001
Prezzo € 1.300
Provincia Milano
Comune Milano
Zona Porta Romana - Medaglie d'Oro
Indirizzo Via Serviliano Lattuada">
Vani 2
Camere 1
Bagni 1
Classe energetica
D (DL 90/2013)
EPgl,nren 175 kwh/m2 anno
Piano 2 / 5
Riscaldamento autonomo
Condizioni ottime condizioni
Spese condominiali € 120
Anno di costruzione 1930
Arredato si
Ascensore si
Cucina cucinotto
Consistenze
Descrizione | Superficie | Sup. comm. |
---|---|---|
Principali | ||
Immobile - 2° piano | 70 Mq | 70 Mqc |
Totale | 70 Mqc |
































Zoom della mappa
Apri con:
Apple Maps
Google Maps
Waze
Apri la mappa